| SARAY ALÜMİNYUM EW55 | KEY YAPI SİSTEMLERİ | |
| ALÜMİNYUM YALITIMLI KAPI VE PENCERE SİSTEMİ |
| |
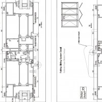
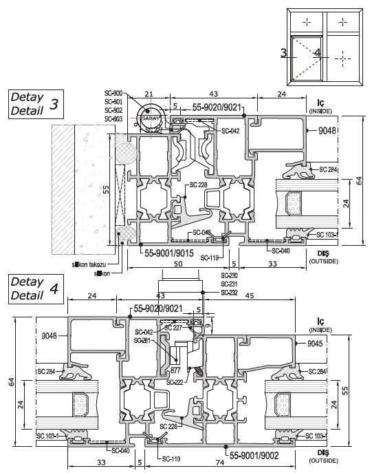
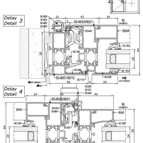
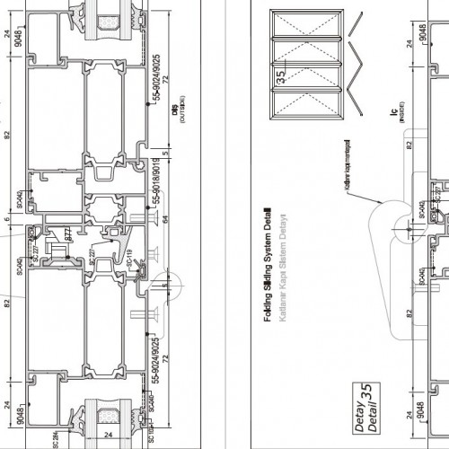
| EW55 TEKNİK ÖZELLİKLER |
| |
| Sistem Derinliği (Kasa) | 55 mm |
|
| Sistem Derinliği (Kanat) | 55 mm – 64 mm |
|
| Isı Yalıtım Bariyer Boyutu | 20 mm – 14,8 mm |
|
| Uygulanabilir Cam Kalınlığı | 4 mm – 32 mm |
|
| PERFORMANS DEĞERLERİ |
|
|
| Uw | 1.87 W/m2K (Pencere Isı İletme Performansı) | |
| Uf | 2.71 W/m2K (Sistem Isı İletme Performansı) | |
| AKUSTİK PERFORMANS | Rw(C,Ctr)≤ 39(-1;-3)dB(Cam kalınlığına göre değişir) | |
| Su Geçirgenliği | Class ≥ 9A (EN 12208) | |
| Hava Geçirimsizliği | Class ≥ 9A (EN 12208) | |
| Rüzgâr Yükü Dayanım | C2-C5 (EN 12210) | |
| ÖZELLİKLER |
| |
| EW-55, yeni EN (Euro Norm) normları dikkate alınarak tasarlanmış, 3 odacıklı kapı ve pencere sistemidir. Sistemin kasa-kanat birleşimindeki basınç dengeleme prensibi öne çıkan özelliğidir. Bu prensibe göre en dışta bini fitili kullanılmamakta, dış odacıkla dış hava ortamının basıncı eşitlenerek su tahliyesi kolaylaştırmaktadır. Orta kısımda “double touch” özellikli özel tasarımlı conta sayesinde ısı izolasyonu ve sızdırmazlık üst düzeye çıkarılmıştır. | ||