| SARAY ALÜMİNYUM SG50K | KEY YAPI SİSTEMLERİ | |
| ALÜMİNYUM GİYDİRME CEPHE SİSTEMLERİ | SİLİKON CEPHE | |
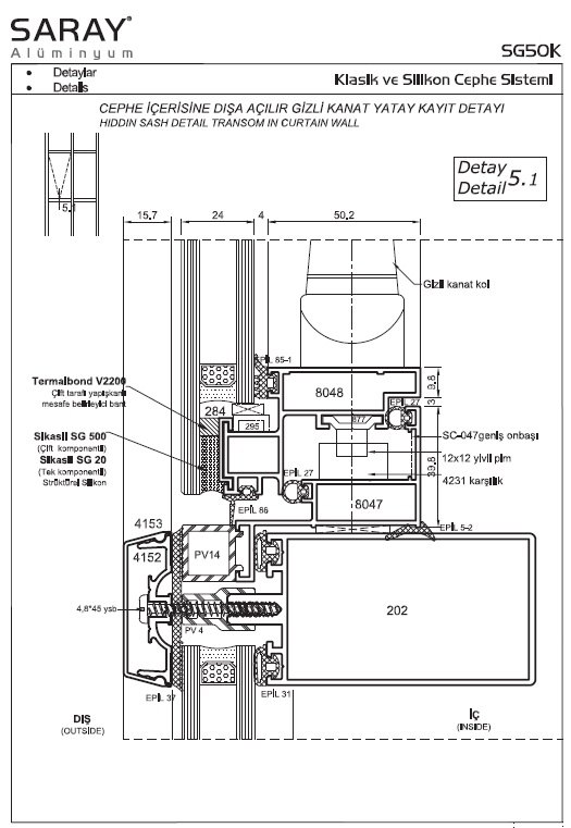
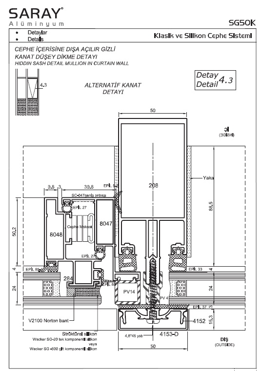
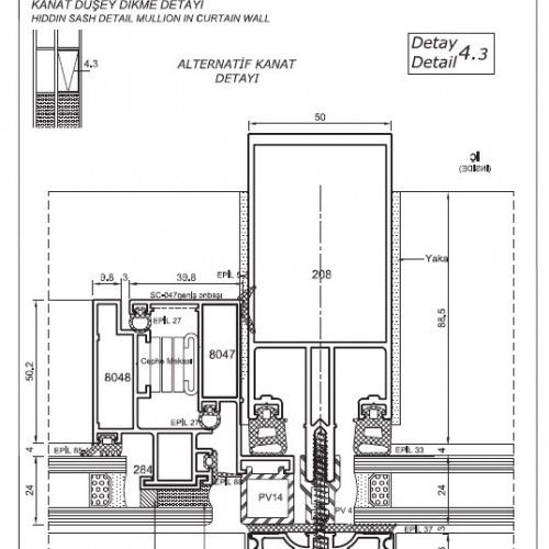
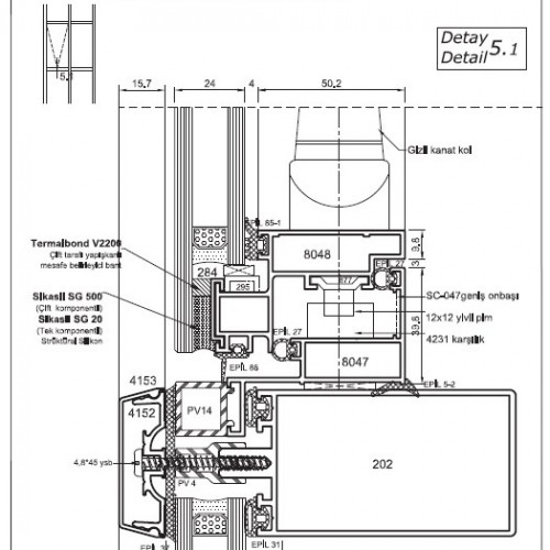
| SG50K TEKNİK ÖZELLİKLER |
| |
| Görünen İç Kısım | 50 mm |
|
| Görünen Dış Kısım | 16 mm |
|
| Camlama Metodu | Bonding |
|
| Uygulanabilir Cam Kalınlığı | 24 mm |
|
| Kanat Alternatifi | Yalıtımlı- Yalıtımsız |
|
| ÖZELLİKLER |
|
|
| 50 mm kesit derinliğine sahip sahip olan SG 50K ısı yalıtımlı silikon cephe sistemidir. Farklı statik değerleri karşılayacak derinliklerde düşey profiller sistemde mevcuttur. Düşey profillerdeki kondens kanalı sayesinde cephe suları kolayca tahliye edilmektedir. Bu sistemde hava ve su geçirimsizliği maksimuma çıkarılarak uygulama sorunları ortadan kaldırılmıştır. Gizli kanat, tırnaklı ve tırnaksız uygulama olanağı sağlamaktadır. | ||