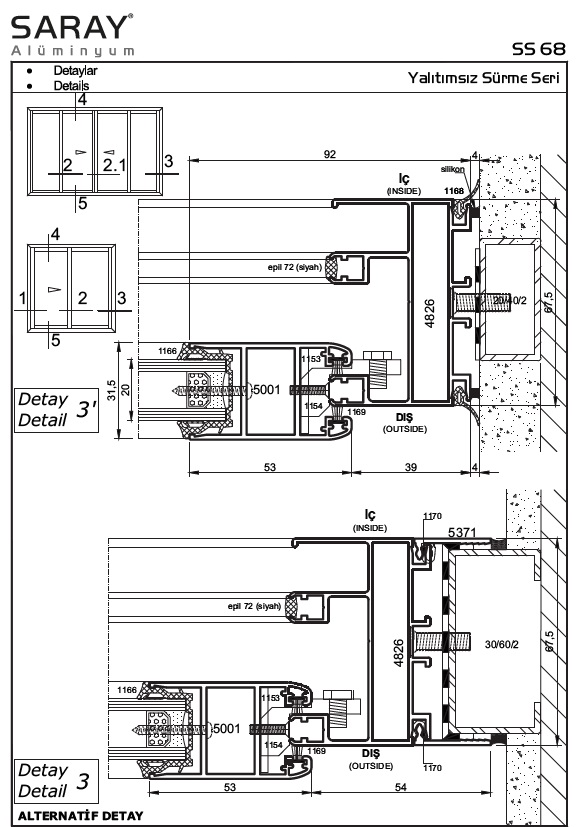
| SARAY ALÜMİNYUM SS68 | KEY YAPI SİSTEMLERİ | |
| ALÜMİNYUM YALITIMSIZ SÜRME SİSTEMİ |
| |
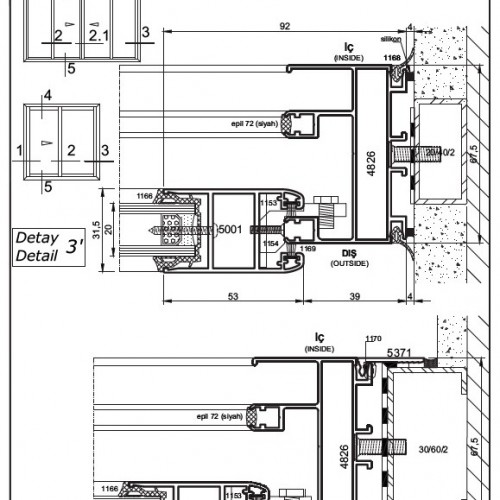
| SS68 TEKNİK ÖZELLİKLER |
| |
| Sistem Derinliği (Kasa) | 67,5 - 89,8 - 95,5 mm |
|
| Sistem Derinliği (Kanat) | 31,5 mm |
|
| Uygulanabilir Cam Kalınlığı | 20 mm – 24 mm |
|
| ÖZELLİKLER |
|
|
| Isı yalıtımsız dekoratif görünümlü sürme kapı ve pencere doğrama sistemidir. 20 ile 24 mm ısıcam takılabilir. Ayarlanabilir makaraları çalışma kolaylığı sağlar. Alternatifli kasa profili seçeneği mevcuttur. | ||